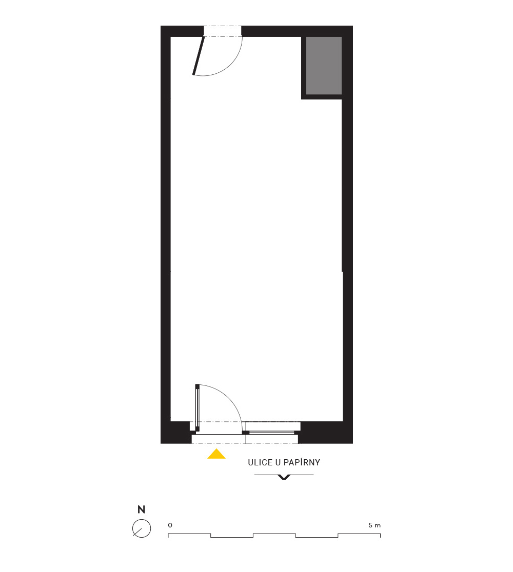
| Podlahová plocha | 36,1 m2 | |



- Ceny obchodních ploch neobsahují parkovací stání a sklepy, ty jsou primárně určeny pro rezidenty budovy. Ceny komerčních ploch jsoubez DPH, které bude v tomto případě činí 21%
- Podlahová plocha jednotky dle platných právních předpisů (nařízení vlády č. 366/2013 Sb.) znamená celkovou plochu všech místností jednotky včetně svislých konstrukcí.
- Plochy jednotlivých místností jsou pouze orientační. Vyobrazené zařízení v plánu jednotky (nábytek, kuchyňská linka, el. spotřebiče atd.) není součástí dodávky. Rozsah dodávky je specifikován ve standardu, který je součástí smluvní dokumentace. Investor si vyhrazuje právo na drobné úpravy.
- Ceny v EUR jsou pouze orientační. Tyto ceny jsou online přepočteny kurzem ČNB v den a čas zobrazení. Ceny bytů a veškerá smluvní dokumentace budou v českých korunách. Je možné platit v EUR nebo i v kryptoměně, nicméně v přepočtu na CZK v den vypořádání. Více informací u prodejce.
Chcete zde pekárnu?
Pojďme se domluvit
Představte si vůni čerstvě upečené křupavé bagety nebo máslového croissantu k ranní kávě. Tento zážitek chceme v MUSE7 doplnit i pekárnou jako součást našeho mixu služeb. Snídaně s čerstvým pečivem přímo v domě vám přinese pohodlí a pocit domova každé ráno.
Otevřít si trendy kavárnu?
Jak je libo ....
MUSE7 nabízí také prostory ideální pro typickou holešovickou kavárnu, která bude místem setkávání pro místní rezidenty z domu i okolí. Můžete si zde vytvořit útulný prostor, kde si každý vychutná šálek dobré kávy, posedí s přáteli a zažije jedinečnou atmosféru, kterou Holešovice nabízejí.
WineBar nemusí být
pouze o víně ...
MUSE7 nabízí prostory, které mohou být ideální pro váš vinný bar. Ve víně se totiž nehledá jen pravda, ale i přátelé. Vytvořte místo, kde se lidé budou rádi setkávat a vychutnávat výběr skvělých vín. Do budoucna zde navíc vznikne malé lokální náměstíčko se vzrostlými stromy, což přispěje k atraktivní atmosféře před budovou.
Holešovice milují kola
MUSE7 nabízí ideální prostory pro váš podnik v srdci Holešovic, lokalitě přátelské pro cyklisty. Ať už lidé využívají kolo jako dopravní prostředek po Praze, nebo si jen tak vyjedou podél Vltavy směrem k Roztokům, Cyklo bike shop by zde určitě nebyl od věci.

