
2× 1+kk 8× 2+kk
5× 3+kk
55× prodáno
5× 1+kk 3× 1,5+kk**
3× 2+kk 4× 2+kk**
8× 3+kk 1× 3+kk**
6× Loft
34× prodáno
2× rezervace
1× volný
1× 3+kk
10× prodáno
3× rezervace
1× rezervace
2× volný
1× rezervace
11× prodáno
2× volný
6× Loft
5× prodáno
5× prodáno
1× rezervace
2× volný
6× volný
2× volný
1× rezervace
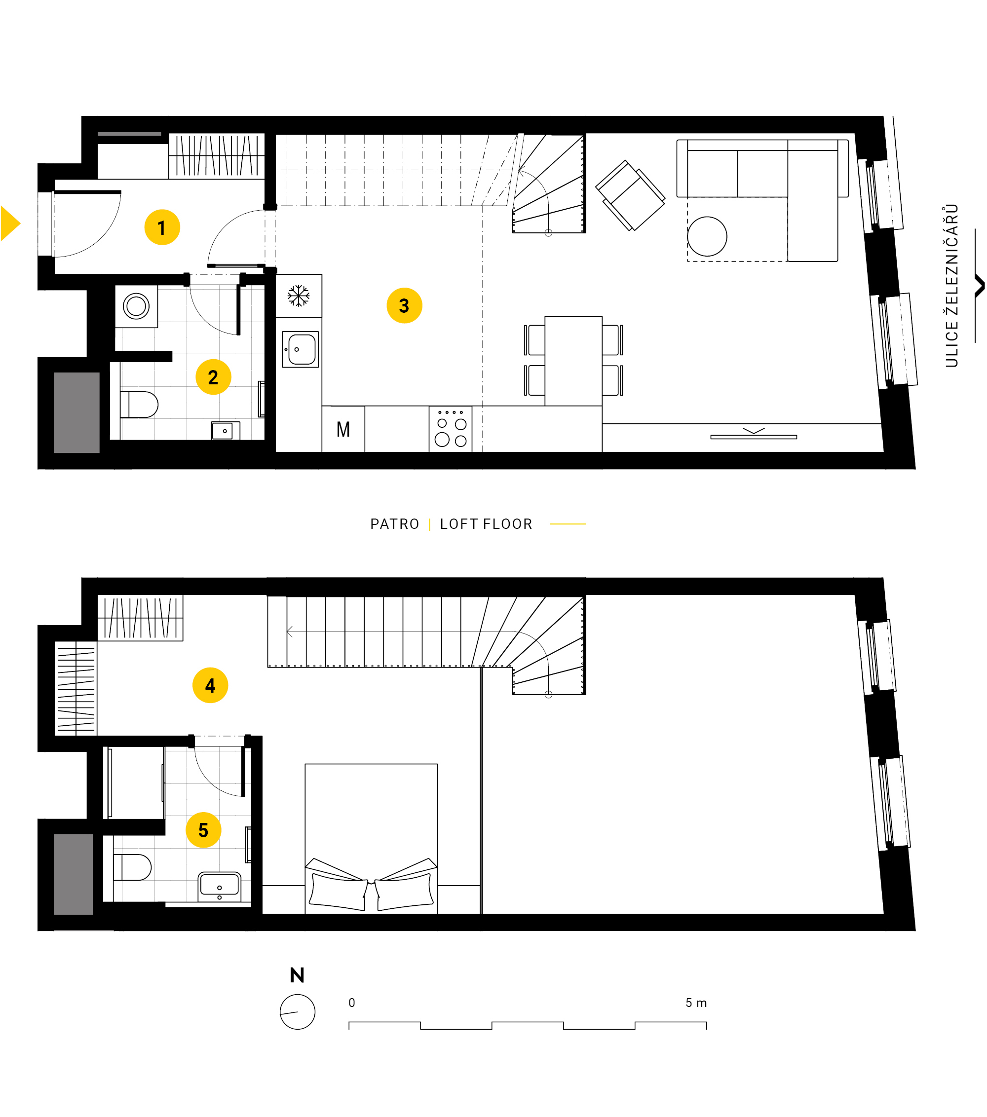
| 01 | Předsíň | 5,4 m2 |
| 02 | WC + komora | 4,4 m2 |
| 03 | Obývací pokoj + kk | 37,3 m2 |
| 04 | Ložnice | 16,1 m2 |
| 05 | Koupelna | 4,1 m2 |
| Užitná plocha bytu | 67,9 m2 | |
| Podlahová plocha bytu* | 70,4 m2 | |



- Ceny bytů nezahrnují parkovací stání ani sklepní kóji. Ceny sklepních kójí se liší dle plochy (100 000 Kč/m2 vč. DPH). K bytům 2+kk a 3+kk lze dokoupit parkovací stání (926 000 Kč / stání včetně DPH). Více informací u prodejce. Ceny bytů obsahují DPH 12%.
- Podlahová plocha bytu dle platných právních předpisů (nařízení vlády č. 366/2013 Sb.) znamená celkovou plochu všech místností bytu včetně svislých konstrukcí.
- Plochy jednotlivých místností jsou pouze orientační. Vyobrazené zařízení v plánu bytu (nábytek, kuchyňská linka, el. spotřebiče atd.) není součástí dodávky. Rozsah dodávky je specifikován ve standardu, který je součástí smluvní dokumentace. Investor si vyhrazuje právo na drobné úpravy.
- Ceny v EUR jsou pouze orientační. Tyto ceny jsou online přepočteny kurzem ČNB v den a čas zobrazení. Ceny bytů a veškerá smluvní dokumentace budou v českých korunách. Je možné platit v EUR nebo i v kryptoměně, nicméně v přepočtu na CZK v den vypořádání. Více informací u prodejce.
** K tomuto bytu se vztahuje dodatek, který smluvně upravuje specifikaci dispozice prodávané jednotky.
Ke všem bytům je nutno dokoupit sklep.
Byty, které Vám
šetří peníze
Byty v MUSE7 budou disponovat energetickým štítekem A, což potvrzuje její vysokou energetickou efektivitu, a tím i menší účty za energie. Dům je vybaven moderními technologiemi, které přispívají k ekologickému provozu a pohodlí jeho obyvatel. Součástí vybavení je vzduchotechnika s rekuperací tepla, která zajišťuje čerstvý vzduch a úsporu energie. Předokenní žaluzie chrání interiér před přehříváním a zvyšují energetickou efektivitu budovy. Fotovoltaické panely na střeše pak budou využívány ke snížení spotřeby elektrické energie při užívání společných prostor.
Fitness pro rezidenty
Obyvatelé v projektu MUSE7 mohou využívat moderní posilovnu, která bude připravena výhradně pro ně. Fitness bude vybaven běžeckými pásy, šlapacím trenažérem a zařízením pro funkční trénink. Součástí posilovny bude také technologie výměny vzduchu, která zajistí bezprašné prostředí a neustále čerstvý vzduch. Tato služba poskytuje komfortní a zdravé podmínky pro cvičení přímo v rezidenci, což přispívá k pohodlnému a aktivnímu životnímu stylu rezidentů.
Jezdit na kole je fajn
Holešovice jsou známé svým přátelským přístupem k cyklistice jako formě dopravy, a rezidence MUSE7 na to navazuje. Obyvatelé budou mít k dispozici kolárnu a myčku kol v suterénu budovy, která bude sloužit i k očistě pejsků, což přispívá k pohodlí a praktičnosti.
Sauna v MUSE7
V projektu MUSE7 bude rezidentům k dispozici také finská sauna, která zahrnuje místnost pro relaxaci a odpočinek. Tento prostor poskytne ideální místo pro regeneraci a uvolnění po náročném dni, a to přímo v pohodlí rezidence. Sauna přispívá k celkovému komfortu a pohodlí obyvatel rezidence.
Nabíjecí stanice elektromobilů
V rezidenci MUSE7 bude k dispozici celkem 89 parkovacích míst. Část těchto míst bude alokována pro elektromobily, kde rezidenti budou mít možnost v rámci klientské změny (KZ) si nechat instalovat dobíječky pro svá elektroauta. Tato řešení zajišťují moderní a ekologicky šetrné parkování, což přispívá k pohodlí a udržitelnosti celého projektu.
Obchody v přízemí MUSE7
V přízemí rezidence MUSE7 budou obchody, které chceme namixovat tak, aby odpovídaly specifickému charakteru Holešovic a potřebám místních rezidentů. Důležitou součástí bude také komunitní centrum Prahy 7, umístěné v historické budově, které nabídne prostor pro setkávání, vzdělávací aktivity a další společenské akce, čímž přispěje k obohacení místního života.
Recepce pro rezidenty
Rezidenti v bytovém projektu MUSE7 mohou využít služeb recepce, která jim pomůže s řešením provozních situací a může po dohodě přebírat i jejich zásilky. Recepce zároveň monitoruje CCTV kamery, které budou instalovány ve vstupech, vjezdu do budovy a v garážích, čímž zajišťuje zvýšenou bezpečnost a pohodlí pro obyvatele. Tato služba přispívá k celkovému komfortu a bezproblémovému chodu každodenního života v rezidenci.

